Продажа, дом, 117.1 м²
Московская область, Домодедово, Южное Судаково коттеджный поселок, д 140
13 000 000 ₽
Цена
13 000 000 ₽
Общая площадь
117.1 м²
Высота потолков
3.2 м
ИЖС
Более одного
без ремонта
2025 г
Кирпичный
Да
Во дворе
Охраняемая
Школа
Фитнес
Торговый центр
Парк
Детский сад
Прямая

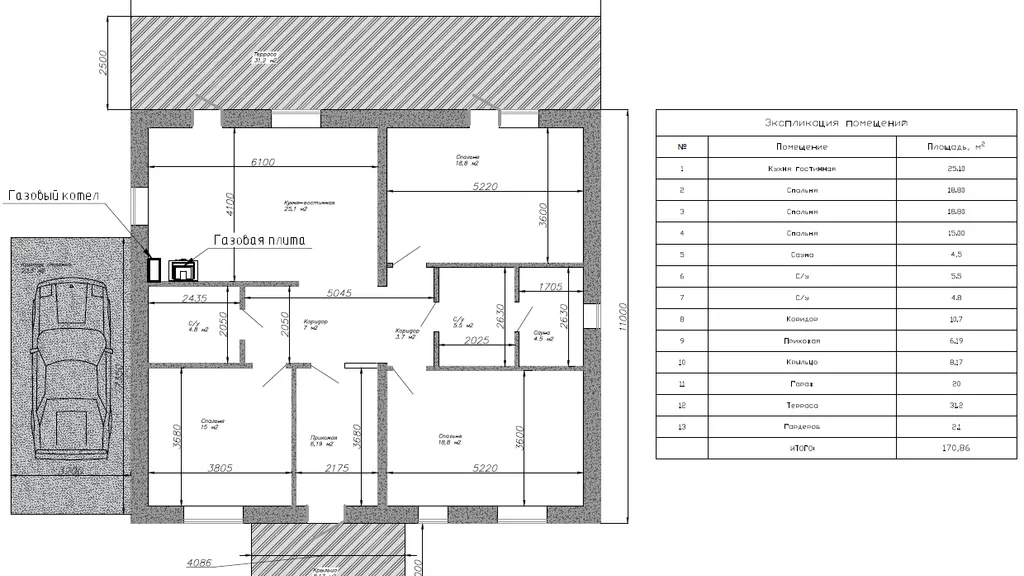
Описание

Мечтаете о своём доме, но пугают стройка и коммуникации? Этот вариант для вас.

В этом проекте изначально выделено место под сауну — берите тёплую атмосферу хоть завтра.

— Просторный одноэтажный дом 117 м² из кирпича (керамоблок + облицовка) на участке 5.3 сот. ИЖС.
— Все коммуникации уже в доме: газ, свет, септик, скважина 65 метров.
— 25 км от МКАД по Новокаширскому шоссе, асфальт до участка. Рядом магазины, школа, сад.
— Ипотека (в том числе льготная).

Дом 2025 года, чистый, без отделки. Но если не хотите возиться сами, наша команда сделает всё под ключ (стоимость услуг оговаривается отдельно):
— установит двухконтурный котёл, радиаторы, бойлерную;
— смонтирует водоподготовку;
— выполнит ремонт white-box;
— и, конечно, оборудует вашу личную сауну.
В итоге вы получаете не просто стены, а готовый тёплый контур с инженеркой. Останется только расставить мебель, попариться и жить.

Хотите уверенности и уюта без головной боли? Звоните, покажем и расскажем.
Мечтаете о своём доме, но пугают стройка и коммуникации? Этот вариант для вас. В этом проекте изначально выделено место под сауну — берите тёплую атмосферу хоть завтра. — Просторный одноэтажный дом 117 м² из кирпича (керамоблок + облицовка) на участке 5.3 сот. ИЖС. — Все коммуникации уже в доме: газ, свет, септик, скважина 65 метров. — 25 км от МКАД по Новокаширскому шоссе, асфальт до участка. Рядом магазины, школа, сад. — Ипотека (в том числе льготная). Дом 2025 года, чистый, без отделки. Но если не хотите возиться сами, наша команда сделает всё под ключ (стоимость услуг оговаривается отдельно): — установит двухконтурный котёл, радиаторы, бойлерную; — смонтирует водоподготовку; — выполнит ремонт white-box; — и, конечно, оборудует вашу личную сауну. В итоге вы получаете не просто стены, а готовый тёплый контур с инженеркой. Останется только расставить мебель, попариться и жить. Хотите уверенности и уюта без головной боли? Звоните, покажем и расскажем.
14.03.2026, 09:45